La Junta de Gobierno Local (JGL) del Ayuntamiento de Torrevieja ha aprobado en la mañana de hoy la adjudicación de las obras de adaptación de dos plantas del Centro Multiusos para destinarlas a centro de formación y centro de ocio juvenil. Un total de 11 empresas han presentado ofertas, habiendo sido adjudicadas a la mercantil INMOURBANA SERVICIOS S.L.U. por 153.536,90 euros. El plazo de ejecución de las obras será de 3 meses, que comenzará a contar tras la firma del Acta de Replanteo.
Estas obras servirán para adaptar el edificio multiusos al nuevo programa de necesidades, llevándose a cabo la modificación de la distribución de la sala existente en la planta 3ª y la planta 5ª, para adecuar sus dimensiones y características, adaptándose las instalaciones de electricidad, climatización y protección contra incendios existentes, a las necesidades del nuevo programa.
Asimismo, todas las actuaciones que se van a realizar en la reforma son fáciles de desmontar en cualquier momento para volver a su configuración espacial original. Tras el nuevo programa, las plantas presentarán la siguiente distribución:
-Planta 3ª: CENTRO DE OCIO JUVENIL. Salón de actos, sala polivalente, sala de actividades, almacén y cuartos de instalaciones, zonas de circulación y el núcleo de comunicación del edificio (escaleras y ascensores). Existe también un montacargas.
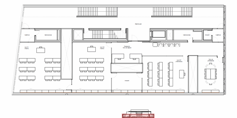
-Planta 5ª: CENTRO DE FORMACIÓN. 3 aulas, una sala de profesores, una recepción con zona de espera, almacenes y cuartos de instalaciones, zonas de circulación, y el núcleo de comunicación del edificio (escaleras y ascensores).
La configuración y el sistema de tabiquería móvil escogido, permite versatilidad en la configuración de diferentes espacios, en función de las necesidades del uso de la planta tercera. Además, estas particiones podrían desmontarse y volver a la distribución original del proyecto.
Superficies útiles y construidas
A continuación se describen las superficies objeto de la reforma:
Planta 3:
– Salón de actos: 119,50 m2
– Sala polivalente: 85,75 m2
– Sala de actividades: 103,70m2
Planta 5:
– Aula 1: 71,65 m2
– Aula 2: 55,55 m2
– Aula 3: 50,95 m2
– Sala de profesores: 28,50 m2
– Recepción/Sala de espera: 51,20 m2
– Almacén: 18,90 m2














Comentarios